マンション建設〜販売を効率化する
HASEKO'S BIM

# デジタルソリューション
# 長谷工のBIM
SCROLL DOWN
5つのビジネス
# デジタルソリューション
# 長谷工のBIM
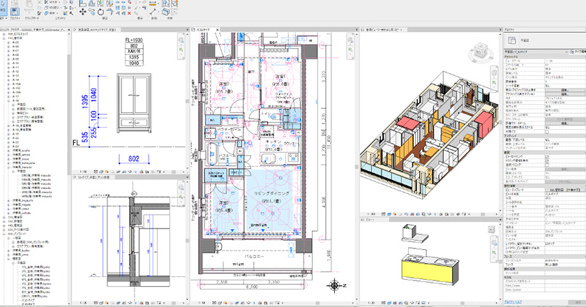
設計BIMデータどおりの正確な情報をそのままに、
さまざまなデジタルコンテンツをつくり出すことができます。
販売現場においては、iPadなどにセットアップしたそれらのコンテンツを活用して
「成約」をもたらす様々なデジタル体験を生み出します。


Copyright © HASEKO Links Co.,Ltd. All Rights Reserved.