ブランシエスタ江古田 ロゴ
デジタルパンフレット
お問い合わせは株式会社長谷工ライブネット 新宿オフィス
[受付時間]9:00~17:30
[定休日]土曜・日曜・祝日
TOP
ROOM PLAN
EQUIPMENT
ACCESS & LOCATION
OUTLINE
外観完成予想CG外観完成予想CG
外観完成予想CG
Room Plan
1K〜3LDK、全14タイプ
2バリエーション。角住戸中心
開放的なプランニング。
室内を簡単に間仕切れる、可変性と回遊性の高い効率的な空間設計。
正形な室内に開放感と陽光が満ちる、ワイドスパン住戸やルーフバルコニー付きプランなどを多数ご用意しています。
※全21戸中12戸
〜39㎡
40〜59㎡
60㎡〜
40〜59㎡ 40〜59㎡
A type
2LDK+WIC+SIC
専有
面積
54.74
ホールとLDから出入りできる回遊性の高い2WAYの洋室(1)。
ホールとLDから出入りできる回遊性の高い
 2WAYの洋室(1)。
洋室(1)(2)の引戸を開放すればLDと一体的なひろびろ空間に。
洋室(1)(2)の引戸を開放すれば
 LDと一体的なひろびろ空間に。
コーナーウィンドウを設けた明るいキッチン。
 便利なカウンターも設置。
キッチンから出入りできる家事効率に配慮した2WAY洗面室。
キッチンから出入りできる家事効率に配慮した
 2WAY洗面室。
Aタイプ 図面
C type
2LDK+WIC+SIC
専有
面積
55.28
ホールとLDから出入りできる回遊性の高い2WAYの洋室(1)。
ホールとLDから出入りできる回遊性の高い
 2WAYの洋室(1)。
洋室(1)(2)の引戸を開放すればLDと一体的なひろびろ空間に。
洋室(1)(2)の引戸を開放すれば
 LDと一体的なひろびろ空間に。
コーナーウィンドウを設けた明るいキッチン。
 便利なカウンターも設置。
キッチンから洗面室へ出入りできる
 家事効率に配慮した2WAY洗面室。
Cタイプ 図面
D type
2LDK+SIC
専有
面積
49.53
LDと空間の一体利用ができる引戸を採用した洋室(2)。
LDと空間の一体利用ができる引戸を採用した
 洋室(2)。
トイレに小物類などをディスプレイできるカウンターを確保。
トイレに小物類などをディスプレイできる
 カウンターを確保。
シューズインクロゼットや各室に収納スペースを確保。
シューズインクロゼットや各室に
 収納スペースを確保。
Dタイプ 図面
F type
1LDK+WIC
専有
面積
45.93
2面にバルコニーを設けた開放的な角住戸。
LDと空間の一体利用ができる引戸を採用した洋室。
窓のある明るいキッチン。便利なカウンターも設置。
扉の開閉時に空間に干渉しない引戸を採用した
 大型ウォークインクロゼット。
Fタイプ 図面
I type
1LDK+WIC
専有
面積
40.01
ホールとLDから出入りできる回遊性の高い2WAYの洋室(1)。
ホールとLDから出入りできる回遊性の高い
 2WAYの洋室(1)。
洋室(1)(2)の引戸を開放すればLDと一体的なひろびろ空間に。
洋室(1)(2)の引戸を開放すれば
 LDと一体的なひろびろ空間に。
コーナーウィンドウを設けた明るいキッチン。
 便利なカウンターも設置。
キッチンから出入りできる家事効率に配慮した2WAY洗面室。
キッチンから出入りできる家事効率に配慮した
 2WAY洗面室。
Iタイプ 図面
K type
2LDK+WIC+SIC
専有
面積
50.75
LDと空間の一体利用ができる引戸を採用した洋室(1)と(2)。
LDと空間の一体利用ができる引戸を採用した
 洋室(1)と(2)。
窓のある明るいキッチン。
シューズインクロゼットやウォークインクロゼットなど
 大型収納を確保。
シューズインクロゼットや
 ウォークインクロゼットなど大型収納を確保。
Kタイプ 図面
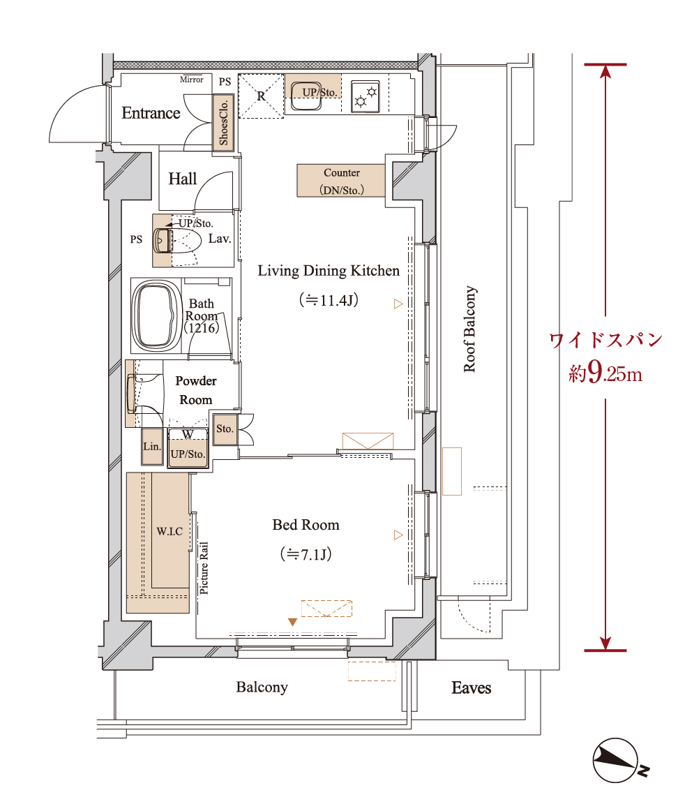
L type
1LDK+WIC+SIC
専有
面積
43.62
大きな開口部を設けた横長ワイドリビング。
ホールとLDから出入りできる回遊性の高い2WAYの洋室。
 LDとの一体利用も可能。
ホールとLDから出入りできる回遊性の高い
 2WAYの洋室。LDとの一体利用も可能。
窓のある明るいキッチン。
 食品のストックなどに便利なパントリーも設置。
シューズインクロゼットやウォークインクロゼットなど
 大型収納を確保。
シューズインクロゼットや
 ウォークインクロゼットなど大型収納を確保。
Lタイプ 図面
M type
1LDK+SIC
専有
面積
46.67
最大奥行き約2.75mのゆとりを持たせた開放的な。
 L型ルーフバルコニー。
ルーフバルコニーに面して窓を3カ所設けた明るい
 横長ワイドリビング。
トイレに小物類などをディスプレイできるカウンターを確保。
トイレに小物類などをディスプレイできる
 カウンターを確保。
窓を設けた明るいバスルーム。
Mタイプ 図面
Ig type
1LDK+WIC
専有
面積
40.01
ホールとLDから出入りできる回遊性の高い2WAYの洋室。
 LDとの一体利用も可能。
ホールとLDから出入りできる回遊性の高い
 2WAYの洋室。LDとの一体利用も可能。
窓のある明るいキッチン。お料理の匂いを逃がしやすくします。
窓のある明るいキッチン。
 お料理の匂いを逃がしやすくします。
窓を設けた明るいバスルーム。
バルコニーから出入りでき、
 多彩なアウトドアライフが愉しめる芝張りの専用庭。
バルコニーから出入りでき、
 多彩なアウトドアライフが愉しめる芝張りの専用庭。
Igタイプ 図面
WIC:ウォークインクロゼット SIC:シューズインクロゼット 収納 エアコン 室外機
〜39㎡
40〜59㎡
60㎡〜
〜39㎡ 〜39㎡
G type
2K+WIC
専有
面積
30.00  
お料理に専念しやすい独立型キッチン。
最大奥行き約1.77mのゆとりを確保した開放的なバルコニー。
最大奥行き約1.77mのゆとりを確保した
 開放的なバルコニー。
窓を設けた明るいバスルーム。
シューズインクロゼットやウォークインクロゼットなど
 大型収納を確保。
シューズインクロゼットや
 ウォークインクロゼットなど大型収納を確保。
リビング・ダイニングと一体的な空間として利用できる、
 2枚引戸を採用した洋室。
リビング・ダイニングと一体的な空間として
 利用できる、2枚引戸を採用した洋室。
Gタイプ 図面
H type
1K
1K  
専有
面積
25.32  
2面採光による明るさに恵まれた洋室。
シューズクロークや3連クロゼットなど収納も充実。
窓を設けた明るいバスルーム。
Hタイプ 図面
J type
1LDK
専有
面積
34.51
ホールとLDから出入りできる回遊性の高い2WAYの洋室。
 LDとの一体利用も可能。
ホールとLDから出入りできる回遊性の高い
 2WAYの洋室。LDとの一体利用も可能。
窓のある明るいキッチン。
 食品のストックなどに便利なパントリーも設置。
窓を設けた明るいバスルーム。
バルコニーから出入りでき、
 多彩なアウトドアライフが愉しめる芝貼りの専用庭。
バルコニーから出入りでき、
 多彩なアウトドアライフが愉しめる芝貼りの専用庭。
Jタイプ 図面
Gg type
2K+WIC
専有
面積
30.00
お料理に専念しやすい独立型キッチン。
バルコニーから出入りでき、
 多彩なアウトドアライフが愉しめる芝張りの専用庭。
バルコニーから出入りでき、多彩なアウトドアライフが
 愉しめる芝張りの専用庭。
窓を設けた明るいバスルーム。
シューズインクロゼットやウォークインクロゼットなど
 大型収納を確保。
シューズインクロゼットや
 ウォークインクロゼットなど大型収納を確保。
リビング・ダイニングと一体的な空間として利用できる、
 2枚引戸を採用した洋室。
リビング・ダイニングと一体的な空間として
 利用できる、2枚引戸を採用した洋室。
Ggタイプ 図面
WIC:ウォークインクロゼット SIC:シューズインクロゼット 収納 エアコン 室外機
〜39㎡
40〜59㎡
60㎡〜
60㎡〜 60㎡〜
B type
3LDK+SIC
専有
面積
62.62
洋室(1)と(2)は空間が一体利用できるウォールドアを採用。
洋室(1)と(2)は空間が一体利用できる
 ウォールドアを採用。
LDと洋室(2)(3)も引戸を開放すればより広々とした空間に。
LDと洋室(2)(3)も引戸を開放すれば
 より広々とした空間に。
コーナーウィンドウを設けた明るいキッチン。
玄関のシューズインクロゼットや物入れなど豊富な収納を確保。
玄関のシューズインクロゼットや物入れなど
 豊富な収納を確保。
Bタイプ 図面
E type
3LDK
専有
面積
60.01
洋室(2)と(3)は空間が一体利用できるウォールドアを採用。
洋室(2)と(3)は空間が一体利用できる
 ウォールドアを採用。
LDと洋室(2)(3)も引戸を開放すればより広々とした空間に。
LDと洋室(2)(3)も引戸を開放すれば
 より広々とした空間に。
トイレに小物類などをディスプレイできるカウンターを確保。
トイレに小物類などをディスプレイできる
 カウンターを確保。
窓を設けた明るいバスルーム。
Eタイプ 図面
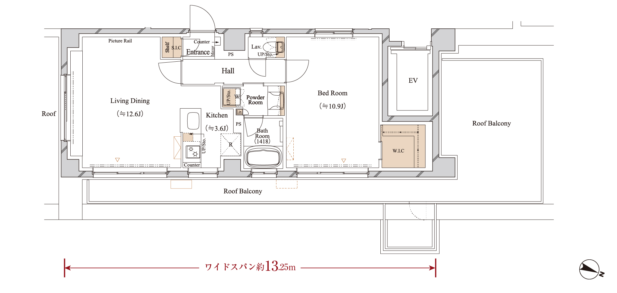
N type
1LDK+WIC+SIC
専有
面積
61.70
最上階1フロアのみのプレミアム住戸。
最大奥行き約3.81mのゆとりを持たせた
 開放的なL型ルーフバルコニー。
約16.3畳の贅沢な広さを確保した2面採光のLDK。
2面採光の洋室はゆとりある約10.9畳。大型ウォークインクロゼットも確保。
2面採光の洋室はゆとりある約10.9畳。
 大型ウォークインクロゼットも確保。
窓を設けた明るいバスルーム。
Nタイプ 図面
Nタイプ 図面
WIC:ウォークインクロゼット SIC:シューズインクロゼット 収納 エアコン 室外機
角部屋率約57%のプランニング
鳥かご
鳥かご
凡例
※掲載の外観完成予想CGは、設計図面を基に描き起こしたもので、形状、色見等は実際とは異なります。
 また、植栽については、特定の季節、時期、またはご入居時期を想定して描かれたものではありません。葉や花の色合い、枝ぶりや樹形は想定であり、実際とは異なります。
※バルコニー手摺及び柱の形状は階数により異なります。
※施工上の都合により設計仕様・設備機器の取り付け位置・寸法等に多少の変更が生じる場合があります。
募集に関するお問い合わせはこちら
※当サイトは募集サイトではございません。
お問い合わせは
長谷工ライブネット 新宿オフィス
03-4332-4204
[受付時間]9:00〜17:30 
[定休日]土曜・日曜・祝日
事業主 長谷工コーポレーション
貸主 長谷工ライブネット
© HASEKO Corporation. All Rights Reserved.
TEL お問い合わせ長谷工ライブネット 新宿オフィス
電話 アイコン
TEL お問い合わせ
長谷工ライブネット 新宿オフィス