ROOM PLAN

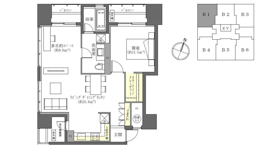
B1Type 1BR 専有面積82.50m2

月額賃料2,200 USD 〜

広いLDスペースと書斎スペース。自宅での仕事 や趣味のスペースが必要な方向き。寝室にはウォ ークインコローゼット設置しているので、書類や 趣味の道具もたっぷり収納して頂けます。 

ページ上部へ