メニューを開く
CONCEPT
コンセプト
PUBLIC
共用施設
PLAN
間取り
LOCATION
ロケーション
EQUIPMENT
設備・仕様
QUALITY
長谷工品質
OUTLINE
物件概要
CONTACT
お問い合わせ
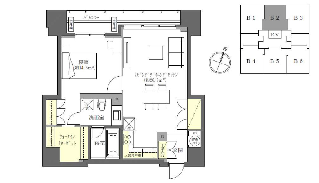
ROOM PLAN
B2
Type
1BR
専有面積
74.40
m
2
月額賃料
2,000 USD 〜