ROOM PLAN

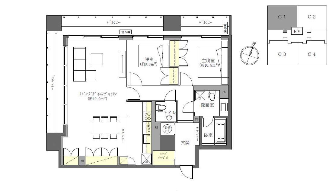
C1Type 2BR 専有面積122.80m2

月額賃料3,000 USD 〜

16階・17階は、全ての住戸が120㎡超えのエグゼク ティブフロアー。品質・眺望・間取りと The Authenticの全てを満喫して頂ける住戸です。 

ページ上部へ