ポートレートモード(縦置き)表示でご覧ください。

ブランシエスタ目黒中央町

※掲載の眺望写真は2024年10月に撮影したものです

※掲載の眺望写真は2024年10月に撮影したものです

ROOM PLAN

多彩な暮らしに応える
豊富なプランバリエーション。

  • Dtype
    1LDK+SIC
    専有面積/39.39
    • 独立タイプのキッチンには、食器棚が置けるスペースを確保。
    • 玄関に靴以外も収納できるシューズインクロゼットを設置。
    D TYPE
  • Gtype
    1LDK+SIC
    専有面積/38.04
    • 引き戸を開放すれば洋室とリビングがひとつの空間に。
    • バス&洗面室とトイレを分けた使いやすい水回り設計。
    G TYPE
  • Htype
    1LDK+SIC
    専有面積/31.62
    • 部屋の角に柱型が無く、家具レイアウトがしやすい室内空間。
    • ウォークインクロゼットをはじめ、便利な収納を確保。
    H TYPE
  • HRtype
    1LDK+SIC
    専有面積/31.62
    • 部屋の角に柱型が無く、家具レイアウトがしやすい室内空間。
    • ウォークインクロゼットをはじめ、便利な収納を確保。
    HR TYPE

INTERIOR FINISHING

リビング・ダイニングには
特別仕様のアクセントクロスをあしらい、
上品で洗練された雰囲気を演出。
心地よい空間が、
日々の暮らしに華やかさを添えます。

LD天井クロス
LD天井クロス
LDアクセントクロス
LDアクセントクロス
キッチン天板
キッチン天板
  • Atype
    2LDK+2WIC
    専有面積/52.74
    • 居室2部屋それぞれにウォークインクロゼットを設置。
    • 明るく開放的な2面採光の角住戸プラン。
    A TYPE
  • L1type
    2LDK+SIC
    専有面積/52.72
    • 14・3帖の広さを確保したゆとりのリビングダイニングキッチン。
    • 居室と収納の広さが簡単に変えられる収納ユニット「ウゴクロ」採用。
    L1 TYPE
  • L1WWtype
    2LDK+SIC
    専有面積/52.75
    • 14・3帖の広さを確保したゆとりのリビングダイニングキッチン。
    • 居室と収納の広さが替えられる収納ユニット「ウゴクロ」採用。
    L1WW TYPE
  • L2type
    2LDK+SIC
    専有面積/52.72
    • 14・3帖のゆったりとしたリビングダイニングキッチン。
    • 居室と収納の広さが替えられる収納ユニット「ウゴクロ」採用。
    L2 TYPE
  • L2Wtype
    2LDK+SIC
    専有面積/52.72
    • 14・3帖のゆったりとしたリビングダイニングキッチン。
    • 居室と収納の広さが替えられる収納ユニット「ウゴクロ」採用。
    L2W TYPE
  • L2WWtype
    2LDK+SIC
    専有面積/53.47
    • 2面採光の洋室1と窓付きバスルームのある角住戸プラン。
    • 居室と収納の広さが替えられる収納ユニット「ウゴクロ」採用。
    L2WW TYPE
  • Mtype
    2LDK+WIC+SIC
    専有面積/52.72
    • 家族が自然と顔を合わせる機会が増えるリビングインプラン。
    • 玄関に靴以外もしまえるシューズインクロゼットを設置。
    M TYPE
  • MWtype
    2LDK+WIC+SIC
    専有面積/52.72
    • 家族が自然と顔を合わせる機会が増えるリビングインプラン。
    • 対面式キッチンにより、開放感のあるリビングダイニングに。
    MW TYPE
  • Otype
    2LDK+WIC+SIC
    専有面積/59.30
    • 洋室1のウォークインクロゼットをはじめ、豊富な収納を確保。
    • 開放的なリビングダイニングが広がる2面採光の角住戸プラン。
    O TYPE
  • Qtype
    2LDK+WIC+SIC
    専有面積/51.80
    • リビングダイニングとの一体感が高まる対面式キッチン。
    • 靴以外のアイテムもしまえる大型シューズインクロゼット。
    Q TYPE
  • QWtype
    2LDK+WIC+SIC
    専有面積/51.80
    • リビングダイニングとの一体感が高まる対面式キッチン。
    • 靴以外のアイテムもしまえる大型シューズインクロゼット。
    QW TYPE
  • Stype
    2LDK+2WIC
    専有面積/52.74
    • 部屋角に柱型が無い、家具レイアウトがしやすい室内空間。
    • 洋室2部屋それぞれにウォークインクロゼットを設置。
    S TYPE
  • Wtype
    2LDK+N+SIC
    専有面積/51.87
    • リビングダイニングの開放感が高まる対面式キッチン。
    • クロゼットやストレージなど、豊富な収納スペースを確保。
    W TYPE

INTERIOR FINISHING

リビング・ダイニングには
特別仕様のアクセントクロスをあしらい、
上品で洗練された雰囲気を演出。
心地よい空間が、
日々の暮らしに華やかさを添えます。

LD天井クロス
LD天井クロス
LDアクセントクロス
LDアクセントクロス
キッチン天板
キッチン天板
  • Itype
    2LDK+S+WIC
    専有面積/63.24
    • 15・4帖の広々したリビングダイニングの開放感が高まる対面式キッチン。
    • 暮らしに合わせて多目的に使えるサービスルーム付きプラン。
    I TYPE
  • IWtype
    2LDK+S+WIC
    専有面積/63.24
    • 洋室1に収納力の高い大型ウォークインクロゼットを設置。
    • 暮らしに合わせて多目的に使えるサービスルーム付きプラン。
    IW TYPE
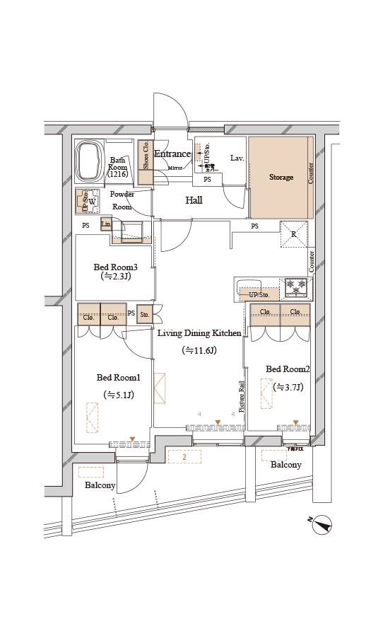
  • Ctype
    3LDK+N
    専有面積/57.90
    • さまざまなアイテムが収納できる大型ストレージを設置。
    • リビングダイニングと居室2部屋がバルコニーに面したプラン。
    C TYPE
  • Xtype
    3LDK+WIC
    専有面積/68.40
    • ウォークインクロゼットをはじめ、豊富な収納を確保。
    • 開放的なL型バルコニーのある2面採光・角住戸プラン。
    X TYPE

INTERIOR FINISHING

リビング・ダイニングには
特別仕様のアクセントクロスをあしらい、
上品で洗練された雰囲気を演出。
心地よい空間が、
日々の暮らしに華やかさを添えます。

LD天井クロス
LD天井クロス
LDアクセントクロス
LDアクセントクロス
キッチン天板
キッチン天板
リビング・ダイニング・キッチン完成予想CG(BWMタイプ) ※設計図面を基に描き起こしたもので、形状、色見等は実際とは異なります。

リビング・ダイニング・キッチン完成予想CG(BWMタイプ)
※設計図面を基に描き起こしたもので、形状、色見等は実際とは異なります。

  • BWMtype
    3LDK+WIC+SIC
    専有面積/95.00
    • 開放的な吹抜けを設けた2面採光角住戸のメゾネットタイプ。
    • 洋室1に衣類が整理しやすい大型ウォークインクロゼット。
    • リビングフロア、プライベートフロアそれぞれにトイレを設置。
    BWM TYPE
  • FWMtype
    3LDK+WIC+SIC+3N
    専有面積/130.19
    • 開放的な空間を演出する吹抜けを設けたメゾネットタイプ。
    • 13.4帖の洋室1にはワイドなウォークインクロゼットを設置。
    • 大型シューズインクロゼットほか、豊富な収納スペースを確保。
    FWM TYPE
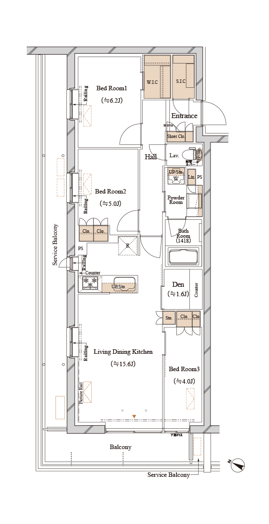
  • Ntype
    3LDK+WIC+SIC
    専有面積/74.38
    • 洋室1に衣類の整理がしやすいウォークインクロゼットを設置。
    • 2面採光のリビングや窓付きキッチンのある角住戸プラン。
    N TYPE
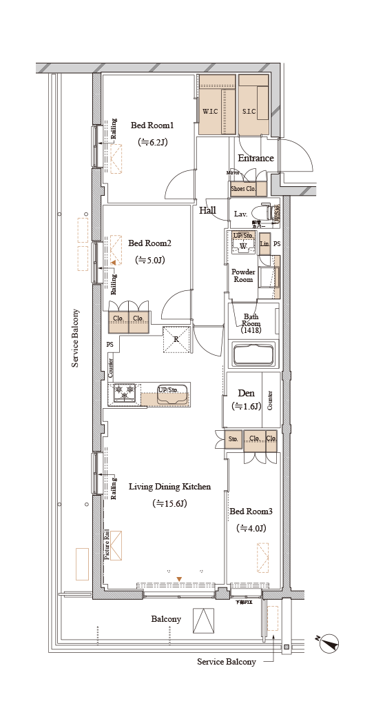
  • NWtype
    3LDK+WIC+SIC
    専有面積/74.38
    • 仕事や勉強など多目的に活用できるスタディーコーナー。
    • 2面採光のリビングや対面式キッチンのある角住戸プラン。
    NW TYPE
  • PWMtype
    3LDK+2N+WIC+SIC
    専有面積/103.90
    • 開放的な吹抜けがある2面採光角住戸のメゾネットタイプ。
    • 2面採光・17帖超のゆとりあるリビングダイニングキッチン。
    • 全居室6帖超を確保したゆとりある3LDKプラン。
    PWM TYPE
  • RWMtype
    3LDK+2N+3WIC
    専有面積/134.01
    • 開放的なルーフバルコニーを設けた最上階メゾネットタイプ。
    • 大きな吹抜けがある26帖超の広々リビングダイニング。
    • 3つのウォークインクロゼットをはじめ、多彩な収納を確保。
    RWM TYPE
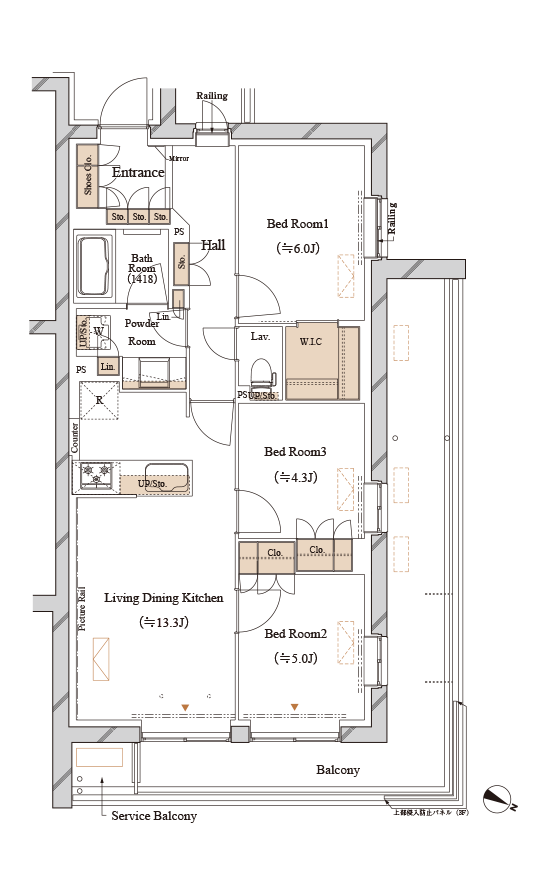
  • UWtype
    3LDK+WIC
    専有面積/73.42
    • 全室がルーフバルコニーに面した開放的なワイドスパンプラン。
    • 引き戸を開放すれば洋室3とリビングがひとつの空間に。
    UW TYPE

INTERIOR FINISHING

プレミアムプランでは
リビング・ダイニングの天井に
突板パネルを採用し、
木の温もりと自然の質感を
活かした空間に仕上げました。
さらに、黒を基調とした木目の
アクセントタイルが重厚感を加え、
洗練された上質な日常を実現します。

LD一部天井突板パネル
LD一部天井突板パネル
LDアクセントパネル
LDアクセントパネル
キッチン天板
キッチン天板

メゾネット住戸ならではの
洗練の設備・仕様

ウルトラファインバブル給湯器
ultra fine bubble
給湯器の洗浄効果・効能

ウルトラファインバブル入りのお湯を使用することで、汚れの原因菌を減少させたり、汚れが付きづらくなることが実験で確認されました。

給湯器の洗浄効果・効能

乾燥しやすい入浴直後の肌に対して、汚れを落とすだけでなく
角層水分量を増加させ肌のうるおいを持続させることを確認しました。

参考画像
ガス衣類乾燥機
乾太くん
速く乾くから、家事が早く片づく。

洗濯物がわずか1時間で乾く。パワフルな温風で繊維が根元から立ち上がり、ふんわり仕上がる。

パワフル温風で、生乾き臭を除去。

80℃以上の温風によるパワフル乾燥で、生乾き臭の原因菌やニオイを取り除きます。

参考画像
確かな品質と性能を備えた
マンション。

マンションの性能を客観的に確認できる住宅性能表示制度を導入し、「設計住宅性能評価書」を取得済です。

取得済
東京都マンション環境性能表示