リフォーム・リノベーション事例
優雅な週末のすまい
お気に入りに追加する
お気に入りから削除しました
週末の別荘をホテルのような開放的ですっきりした空間に
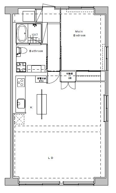
お部屋の機能をLDK・水廻り・寝室の3つに分け、ゆとりある空間に配置しました。心を穏やかにする白で全体をまとめ、こげ茶をアクセントカラーとしてキッチンや洗面台の所々に使っています。窓には強い風と日差しを和らげるためにウィンドウシャッターを取り付けることで、シャッターのやわらかい木の質感が穏やかなくつろぎの空間を作っています。
- 形態
- マンション
- 家族構成
- 2人
- 工事費用
- 約1,430万円(税込)
- 所在地
- 神奈川県
- リフォーム面積
- 約78.0㎡
- リフォーム部位
- キッチン, リビングダイニング, 収納, 書斎/子供室/寝室, 洗面/浴室/トイレ
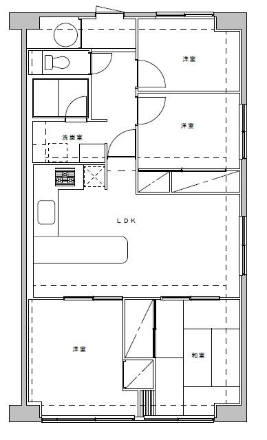
間取り
この事例のタグ
関連する事例





















