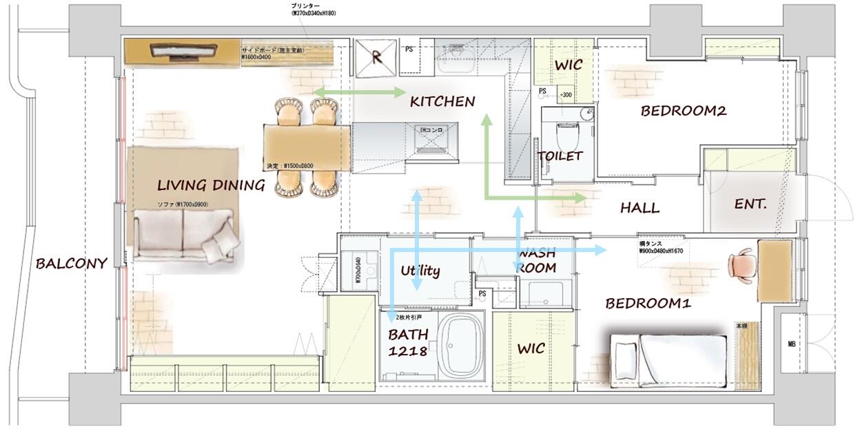
家族それぞれが気兼ねなく過ごせる、動線にこだわったリノベーション
何年もあたためていた理想のわが家を実現しようとリノベーションを決意されたT様。ご友人の多い奥様がリビングで食事などを楽しむ際、帰宅されたご主人様が気兼ねなくシャワーや洗面を使って寝室と行き来できるよう2Wayの動線にこだわられ、プランに落とし込みをしました。また、すれ違うことの多い動線部分を広げるため、キッチンの向きを変えることで、ゆったりとした通行幅を確保。キッチンも2Wayの動線で使いやすくなったうえ、冷蔵庫・シンク・コンロが振り向くだけで使えることで、使い勝手がとても良くなったそうです。
「住んでいる環境を変えずに新しい住まいにできるのがリフォームの醍醐味。大満足で日々過ごしています。」とT様。毎日の暮らしをより一層楽しんで頂いているようです。
~担当店舗~ 東京東店

(図面の●もしくは写真の>をクリックすると移動します。写真上をクリックしながら動かすとお部屋の中を360°ご覧いただけます。
<関連記事>
- 形態
- マンション
- 家族構成
- 3人
- 築年数
- 築28年
- 工事費用
- 約1,280万円(税込)
- 工事期間
- 約80日
- 施工年
- 2024年
- 所在地
- 東京都
- リフォーム面積
- 約76㎡
- リフォーム部位
- キッチン、リビング・ダイニング、洗面室、浴室、トイレ、寝室、収納、玄関・廊下
- 工事内容
- キッチン:TOCLAS(トクラス)
お風呂(ユニットバス):LIXIL(リクシル)
洗面化粧台:LIXIL(リクシル)
トイレ:TOTO(トートー)
建具・フローリング:DAIKEN(大建)
ポイント
家族それぞれが気兼ねなく過ごせる、2wayの間取り
キッチン、脱衣室、洗面室へは2wayで行き来できる動線を確保しました。
家族が集まる時間もそれぞれが自由に過ごす時間も大切にでき、暮らしやすい間取りが実現しました。
コーナー部分も取り出しやすい吊収納
コーナーの吊戸は2枚の扉が繋がったタイプなので、奥まで手が届きやすく使い勝手抜群!
(※メーカーにより仕様が異なります)
間取り
担当者コメント
『リフォーム後、快適に楽しく暮らしています』と言って頂き、T様の夢のリフォームが実現できて本当に嬉しく思います。特に、悩んで決めたキッチンの配置や壁の位置など、実際に使いやすいとお聞きし、ホッとしております。工事が終わり、仮住まいも楽しんでおられたT様の明るいお人柄にしばらくお会いできなくなるのが寂しいですが、またお住まいのことでご相談がありましたらいつでもお声がけください。この度はありがとうございました。
この事例のタグ
関連する事例


























