既存石積み擁壁の安全性向上と景観保全の両立を実現既存石積み擁壁の復元工法
概要
歴史的価値の高い既存石積み擁壁を見た目そのままに復元し、安全性の向上と景観の保全を両立する「重力式石積擁壁の新工法」を開発。新築分譲マンション「ブランシエラ南洲門前通り」で国内初採用。
- ※重力式石積み擁壁とは
擁壁自身の重さを利用することで鉄筋を使わずに背面の土の圧力を支える構造
採用メリット
採用効果
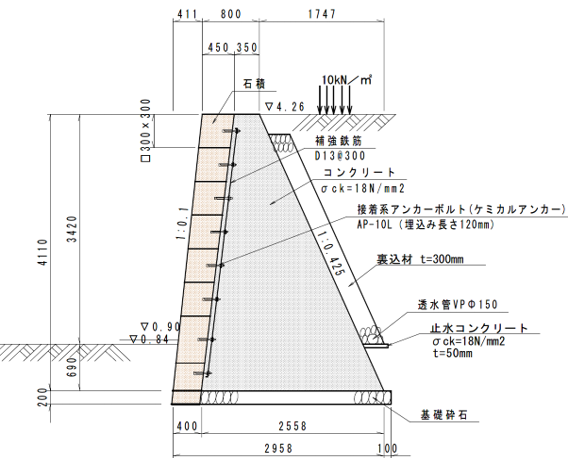
- 歴史的価値の高い石積み擁壁を、現行の技術基準に準拠した擁壁として復元することで周辺の景観保全を可能とする。
- 城壁等の石垣を復元する工法は多いものの、景観を守りつつ(見た目を変化させずに)安全性を向上させ現行の開発許可取得したのは国内初。
- 歴史的な街並みや自然景観が重視される地域での都市開発事業において、今後も重要な役割を果たすと期待される。
採用実績
長谷工不動産および東京建物株式会社が鹿児島市内において販売予定の新築分譲マンション「ブランシエラ南洲門前通り」において採用
開発の目的・背景
わが国には、城壁など歴史的に価値の高い石積擁壁が多く存在する。このような地域における開発工事では、歴史的な景観を保存するためは、石積み擁壁の見た目はそのままに安全性を向上させる技術開発が求められる。
詳細情報


