SEARCH
MENU
The corporate philosophy of the Haseko Group is “To contribute to society by creating an optimal environment for cities and people,” and to bring this to fruition, we view responding to climate change as an important management issue. In line with the Haseko Group’s HASEKO ZERO-Emission climate change response policy, we are aiming to achieve carbon neutrality by 2050.
The Haseko Group will strive to respond to climate change with the following as our basic stance.
Established December 16, 2021
For disclosures based on the TCFD recommendations, please refer to the following:
| Initiatives and KPIs | Target |
|---|---|
Reduce greenhouse gas (CO2) emissions
|
FY2030 -42%
FY2026 0 FY2030 -13% |
| Introduce renewable energy power (including Group companies and offices) |
FY2026 100%
|
| Adopt H-BA Concrete | FY2030 50% or more |
Expand ZEH-M supply
|
Each year 100%
FY2030 100% |
On the basis of the above policy, the Haseko Group set reduction targets using greenhouse gas (CO2) total emissions as a metric, and the 2030 reduction targets were approved as science-based targets by the SBT (Science Based Targets) initiative.
We have also established and are moving forward with a concrete plan for achieving the reduction targets.

| Scopes covered | Actual greenhouse gas emissions in FY2020 (base year) | FY2030 target | FY2050 target |
|---|---|---|---|
| Scope 1 + Scope 2 | 60,382 t-CO2 | Reduce 42% from base year | Reduce 100% from base year |
| Scope 3 | 5,495,690 t-CO2 | Reduce 13% from base year | Reduce 37% from base year |
The Haseko Group’s CO2 emission reduction targets and results are as set out below.
For details on the scope of calculation and results, please refer to the ESG data.
| By FY2025 | By FY2030 | By FY2050 | ||
|---|---|---|---|---|
| CO2 reduction target (Vs. FY2020) |
Scope 1 + 2 -42% Scope 3 -13% |
Scope 1 + 2 -100% Scope 3 -37% |
||
| Scope 1 FY2020 emissions: 39,000 t-CO2 (64% of Scope 1 and 2) |
Construction sites |
|
|
|
| Offices, etc. |
|
|
|
|
| Scope 2 FY2020 emissions: 22,000 t-CO2 (36% of Scope 1 and 2) |
Construction sites |
|
|
|
| Offices, etc. |
|
|||
| Scope 3 FY2020 emissions: 5,500,000 t-CO2 |
Construction materials, etc. (Category 1) |
|
|
|
| Building use stage (Category 11) |
|
|
|
|
Around 90% of emissions in the construction phase come from the use of light oil, so we are undertaking initiatives that will lead to a reduction in fuel use. The main initiatives are as set out below.
Industrial waste generated at construction sites is separated by type (wood waste, waste plastics, mixed waste, etc.) and processed by designated companies. Of these, mixed waste is generated over an extended period of time spanning the commencement of construction to completion of the building, notwithstanding significant reductions in volume generated. We reduce the distance over which waste is transported by selecting the waste processing company nearest to the construction site, from a pool 6 companies and 12 plants in the Tokyo region and 6 companies and 11 plants in the Kansai region.
In addition, soil generated from excavation work is used as backfill material on the site to the greatest extent possible. By improving the efficiency of waste accumulation and transportation, less dump trucks are required, thus reducing CO2 emissions. In addition, most of all waste soil that is removed from construction sites is processed for use in land reclamation, which is destructive on the environment. Thus, by reducing the amount of waste soil that leaves our construction sites, we contribute to environmental protection.
We have built a waste cooking oil utilization system in which the waste cooking oil generated by kitchens of Haseko Senior Well Design’s facilities for the elderly is supplied to construction sites as an alternative fuel to light oil for construction equipment, after being refined into biodiesel fuel (B5)* by Sanwa Energy.
Using this biodiesel fuel can lead to a 5% reduction in CO2 emissions compared to light oil.
We will continue with further studies on similar initiatives to utilize waste cooking oil emitted by the condominiums developed by Haseko Real Estate Development, Sohgoh Real Estate, and other Group companies, as well as the condominiums managed by Haseko Community.

We introduced eight electric vehicles at the Shiba Head Office in April 2024, and we plan to replace two gasoline vehicles at the Hiranomachi Building in Osaka with electric vehicles in September 2025.
Regarding shuttles used by Furusato for its day service for people with dementia, the 21 out of 139 company vehicles that were hybrids in March 2023 will increase to 51 in fiscal 2024. Furthermore, we will replace all company vehicles used as shuttles with hybrid vehicles by March 2025.
In May 2023, Haseko Corporation’s construction sites achieved 100% renewable energy use, a feat followed by Haseko Group construction sites in March 2025.
Toward a switch to 100% renewable energy for electric power used in offices and at facilities owned by the end of 2026, in FY2024 we undertook a switch to renewable energy with a focus on office buildings that we own or lease in full. When switching to electric power derived from renewable energy is not possible, or other such situations in leased buildings, we achieve a de facto switch to renewable energy through the purchase of non-fossil fuel certificates.
In FY2024, Scope 2 emissions in Haseko Group offices fell by 21.3% year-on-year.
In cooperation with an outside power generation company, we have introduced a resource recycling initiative to utilize renewable energy from biomass power generation, which uses waste wooden materials generated at construction sites as part of its fuel, as a temporary power supply at construction sites. Power generation through this initiative results in lower CO2 emissions than conventional thermal power generation, which will reduce CO2 emissions generated by the supply of electricity.

Haseko Corporation participates in biomass power generation business with the goal of achieving carbon neutrality.
We participate in a woody biomass power generation business in Ikoma City in Nara undertaken by TJ Group Holdings. Scrap wood and unused timber from the Kinki region will be used as fuel for generating power in the business, which makes it possible to supply locally produced and locally consumed electricity, including fuel for power generation, for users in the Kinki region. (Commercial operations started in April 2025.)
In Matsusaka City in Mie, we participate in a decarbonized power source development business undertaken by Power Aid Mie that uses hybrid fuel of only NON-FIT wood and manufacturing byproducts. In this business, waste recycled wood chips and plastic chips generated from various construction sites will be repurposed as fuel, leading to the reduction of the administrative burden of waste disposal operation and the contribution to the creation of a local circular resource and energy economy. (Commercial operations started in January 2025.)
Furthermore, electric power from power stations in Ikoma City, Nara Prefecture is supplied to offices, construction sites of Haseko Group companies, and other such locations.
Produced by blending ordinary Portland cement and blast furnace cement type-B, H-BA concrete is so versatile that it can replace conventional concrete. It is eco-conscious concrete that reduces CO2 emissions derived from concrete materials by approximately 20%.
To date, it has been used in projects including a part of the common-use areas of Renai Yokohama Totsuka (Totsuka-ku, Yokohama City, Kanagawa; total 439 units) and the entirety of the Feel G Residence (foundations and above-ground framework), a rental condominium building targeting students (Nishi-ku, Kobe City, Hyogo; total 120 units). In August 2022, H-BA concrete obtained the Special Evaluation Method Certification*1, which is recognized as an alternative evaluation method to methods that comply with the Evaluation Method Criteria*2, from the Ministry of Land, Infrastructure, Transport and Tourism. This certification allows it to be used in for-sale condominiums that use dwelling performance indications.
Based on the Special Evaluation Method Certification, H-BA concrete has been adopted for the first time as sale condominiums for the entirety of the above-ground framework in the THE-KENSINGTON-RESIDENCE-KAMIIKEDAI (Ota-ku, Tokyo; total 42 units) in the Tokyo area, and the Renai Esaka Enokicho (Suita City, Osaka; total 149 units) in the Kansai area.
In order to achieve the Haseko Group’s greenhouse gas emission reduction targets, we will work to further promote the adoption of H-BA concrete, aiming for an adoption rate of at least 50% by FY2030.
| FY2017 | FY2020 | FY2022 | FY2023 | FY2024 | Total | |
|---|---|---|---|---|---|---|
| Volume used (m3) | 125 | 25 | 2,945 | 2,361 | 37,594 | 43,050 |
| Reduction of CO2(t-CO2) | 6.2 | 1.1 | 162.6 | 140.8 | 2,186.2 | 2,496.9 |
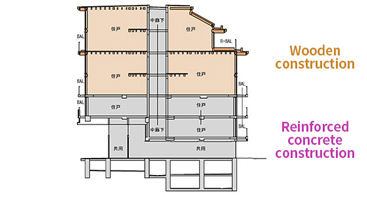
Since 2014, the Haseko Group has been working to promote the use of wood and wood materials in condominiums. Our track record so far includes the use of hybrid structures of wood and reinforced concrete not only in condominium common buildings, but also in common areas and on the upper floors of private-use areas. As of July 2025, we have 20 completed properties and 9 properties under construction.
In March 2025, we completed the BRANSIESTA MEGURO CHUOCHO rental condominium, which features a fire-resistant wooden structure on its top four floors. We expanded the HASEKO-version BIM system to make it compatible with wooden structures, and utilized it in the basic design and detailed design phases of this project. The condominium was selected for the FY2022 3rd Term Project for the Promotion of High-Quality Wooden Buildings, a subsidy program offered by the Ministry of Land, Infrastructure, Transport and Tourism. In the future, in addition to taking on the challenge of adopting wooden structures in high-rise buildings, we hope to expand its application to include for-sale condominium development as well as rental condominium development.
The Haseko Group recognizes that switching multi-family housing to renewable energy is a field in which we can make a major contribution to the achievement of a decarbonized society, and we are therefore working to popularize ZEH-M.
The Haseko Group, including Haseko Real Estate Development, and Sohgoh Real Estate, which are engaged in the condominium development business, will promote ZEH for new condominiums to be developed mainly by the Group. In addition, all condominiums for sale and rental condominiums held by the Group will meet the ZEH-M Oriented standard when they are designed in FY2022 or later.
As part of their efforts to date, Haseko Real Estate Development, and Sohgoh Real Estate are registered as ZEH Developers*1 and Hosoda Corporation, which is engaged in the detached house business, is registered as a ZEH Builder*2.
In addition, we aim for properties to meet ZEH-M Oriented specifications by FY2030, including all new condominiums constructed by the Group. In FY2024, the number of projects that had commenced construction and met the above ZEH-M Oriented standard was 61.
The ZEH Roadmap Examination Committee for Condominiums established within METI defines ZEH-M by the number of floors as indicated below. ZEH for the residential building portion and ZEH for individual dwelling units are assessed individually and independently.
| Evaluation Standards | |||||
|---|---|---|---|---|---|
| Residential building or area for residential use |
Category | ZEH-M | Nearly ZEH-M | ZEH-M Ready | ZEH-M Oriented |
| Insulation performance | All units to satisfy reinforced building envelope standards (ZEH standards) | ||||
| Energy efficiency ratio (Entire residential building including common areas) |
20% reduction, energy efficiency only | ||||
| 100% reduction including renewable energy | 75% reduction including renewable energy | 50% reduction including renewable energy | — | ||
| Target level to aim for | To achieve for 1 to 3 floors | To achieve for 4 to 5 floors | To achieve for 6 floors or higher | ||
| Dwelling unit | Category | ZEH | Nearly ZEH | ZEH Ready | ZEH Oriented |
| Insulation performance | Each unit to satisfy reinforced building envelope standards (ZEH standards) | ||||
| Energy efficiency ratio (Each dwelling unit) |
20% reduction, energy efficiency only | ||||
| 100% reduction including renewable energy | 75% reduction including renewable energy | 50% reduction including renewable energy | — | ||
Cited and compiled from the Summary by the ZEH Roadmap Examination Committee for multi-family housing
In order to design condominiums taking into consideration the earth and the surrounding environment, Haseko Corporation makes design proposals utilizing the Environmental Consideration Check Sheet, which lists specific design proposals including saving energy and resources, consideration for the surrounding environment, long service life, consideration for human health, reduction in waste, and consideration for the global environment.
In FY2024, targeting “95% or higher adoption rate to the number of proposals made” on the Check Sheet, we made design proposals for 103 projects and obtained the following results.
| Number of proposals made | Number of proposals adopted | Adoption rate | |
|---|---|---|---|
| Status of environment-conscious designs | 5,198 | 5,117 | 98.4% |
In order to design condominiums with lower CO2 emissions, Haseko Corporation calculates the CO2 reduction rate by using the CO2 Emissions Calculation Sheet. The Sheet computes the CO2 reduction rate by converting into CO2 emissions the standard value and the design value of primary energy consumption of condominium unit areas and communal areas calculated for each project using a Web program in accordance with the Act on the Improvement of Energy Consumption Performance of Buildings.
In FY2024, targeting “10% or higher CO2 reduction rate (compared to the standard value under the Act on the Improvement of Energy Consumption Performance of Buildings)”, we implemented this initiative for 104 projects and obtained the following results.
| Standard value | Design value | Reduction volume | Reduction rate | |
|---|---|---|---|---|
| Status of CO2 reduction rate (t-CO2/year) | 59,920 | 43,132 | 16,789 | 28.0% |
Hosoda Corporation is proactively proposing products taking into consideration lower environmental burden and environmental symbiosis, aiming to create housing and communities that contribute to the global environment.
Hosoda Corporation is making ongoing efforts to improve the energy-saving performance of houses in order to realize energy savings across society as a whole while improving the quality of life in areas such as convenience and comfort. By improving the insulation performance, etc. of exterior walls and windows and controlling the total energy consumption of buildings, its housing performance specifications adopt a standard that satisfies the Long-Life Quality Housing Standard (5-1 Thermal Insulation Performance Rating: 5; 5-2 Primary Energy Consumption Rating: 6). Furthermore, Hosoda Corporation aims to achieve a thermal insulation performance rating of 6 by 2030. The Company is also working on supplying “certified low-carbon houses” that reduce CO2 emissions, as well as the Tokyo Metropolitan government’s proprietary concept of “Tokyo Zero Emission Houses,” which deliver a higher energy-saving performance by securing heat insulation and improving efficiency of facilities. In fiscal 2024, Hosoda Corporation supplied 86 net Zero Energy Houses (ZEHs), which achieve net-zero annual primary energy consumption by delivering higher thermal insulation and energy saving performance while also generating energy for use in the house by solar power or other means.

Hosoda Corporation places importance on creating environment-conscious houses and communities to better the environment surrounding people and housing. Hosoda Corporation has been certified as the System Supply Type under the Environmentally Symbiotic Housing Certification with the objectives of Low Impact, High Contact and Health & Amenity. Its designs focus not only on the physical performance of housing, but also on qualities such as sunshine and wind flow. By planting abundant greenery around buildings, mitigating radiant heat, adjusting and utilizing rainwater, and taking other initiatives, Hosoda Corporation works on creating communities in harmony with the environment.
Haseko Anshindeli is a company engaged primarily in the cultivation of rice, and was established in January 2015.
In Japan, conventional agriculture that utilizes agricultural chemicals and chemical fertilizers is the norm. However, Haseko Anshindeli uses decarbonized and environmentally-friendly farming techniques.
An example is the rice farming technique of “mid-season draining” in which draining water from the paddies at a specific period in the middle of summer for around one to two weeks in order to improve yield and quality. Haseko Anshindeli extends this period by around one week, which minimizes the impact on rice yield while reducing the amount of methane produced.
We achieved a reduction of 48.4 t-CO2 in fiscal 2024 as a result of decarbonized and environmentally-friendly farming techniques, at the core of which is this “extended mid-season draining” technique.
As around a quarter of greenhouse gases emitted worldwide are attributable to the agricultural sector, we aim for further reduction while continuing with business operations by measures such as using compost and reducing the volume of chemical fertilizers, and make progress in transitioning to organic farming to achieve better decarbonization.
Haseko Group's Sustainability
Related Data / Integrated Report
Special Features